EXT- EAST ENTRY Copy 1-28-1-26.jpg

Architectural Drafting Services

Have been preparing drawings since 1990 for many and varied types of buildings & structures.

Gaia-Website layout-Model.jpg

Do you need reliable documentation, fast turnaround, and zero hassle?

✔ Architect-level documentation without the architect-level overhead.

✔  Get professional drafting support that works like part of your team.

✔ 35+ years of experience delivering clear, build ready documentation

✔ Architect-level drawings without the delays, extra unnecessary ideas or cost.

✔ Fast response times and priority handling for rush jobs

✔ A draftsman who backs you and your decisions

✔ Professional representation when dealing with clients, consultants, or councils

✔ Drawings issued under your business name and logo.

✔ An in-house drafting solution without providing office space or ongoing employment costs

✔ Perfect for builders and developers who already have concepts and need quality documentation done correctly

✔ Practical, solutions and focused thinking that keeps projects moving.

✔ Clear communication with someone who listens and delivers

Types of projects.

With many years of experience, we have worked on the following types of projects.

COMMERCIAL.jpeg

Commercial

  • Warehouses

  • Distribution Centers

  • Workshops

  • New Office buildings

  • Office fitouts

  • Office de-fits

  • Office cabinetry / joinery

  • Truck dealerships

  • Truck workshops

  • Dental Clinics

  • Medical Clinics

  • Movie sets

  • School facilities

  • Childcare Centers

  • Commercial Swimming Pools

  • Shelter sheds

  • Roof Canopies

  • Shop front replacements

industrial.jpeg

Industrial

  • Plant Equipment

  • Factories

  • Storage Facilities

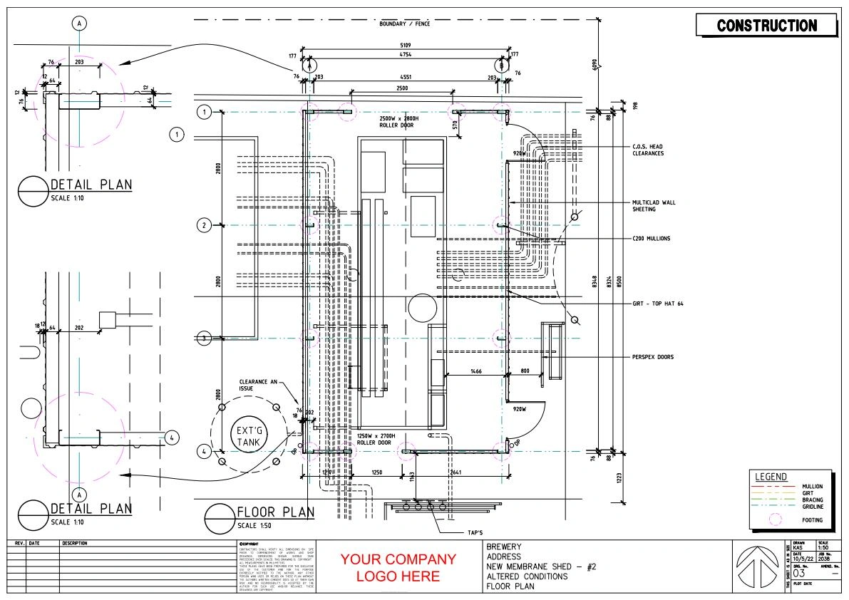
  • Breweries

  • Fabrication Details

infrastructure.jpeg

Infrastructure

  • Toilet Blocks

  • Toilet fitouts

  • Car Parks

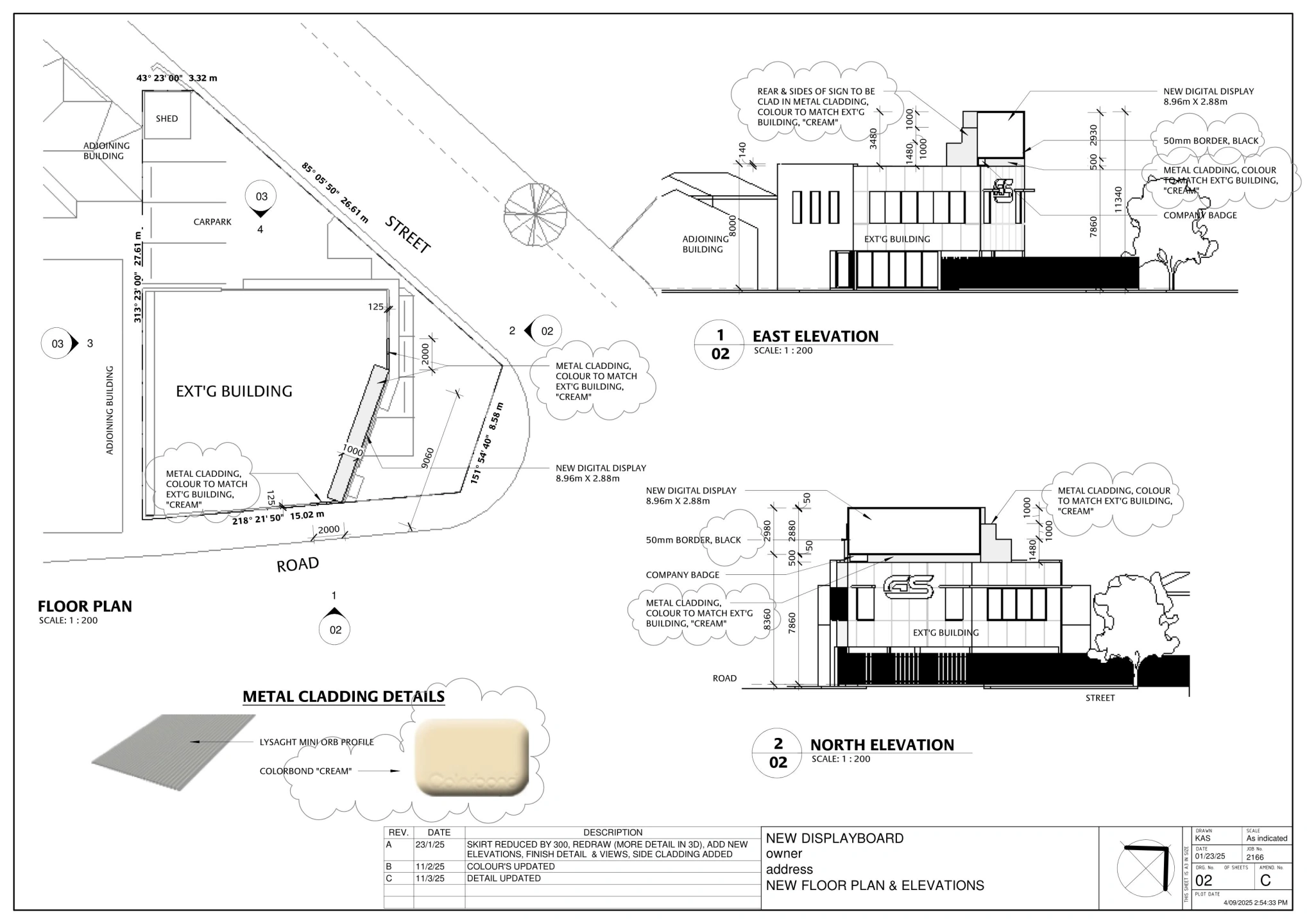
  • Bill Boards

  • Walkways

  • Access Ramps

RETAIL .jpeg

Retail

  • Vehicle Parts sales

  • Shops

  • Shop cabinetry / joinery

  • Pharmacies

  • Car Wash Facilities

  • Axe throwing venues

  • Dog daycare centers

hospitality.jpeg

Hospitality

  • Fast food outlets

  • Restaurants

  • Bars

  • Alterations to Bars / pubs

  • Liquor Stores (large / small)

  • Food Van venues

shop drawing.jpeg

Generic / Standard Drawings

  • Shops

  • Pharmacies

  • Saunas

  • Steam Rooms

  • Retail fit-outs

  • Warehouse layouts

RESIDENTIAL.jpeg

Residential

  • New Houses

  • House alterations & additions

  • New Units

  • Unit alterations & additions

  • Passive Solar houses

  • Sustainable architecture

  • Hay Bale Houses

  • Mud Brick Houses

  • NDIS

  • Multi-story

  • Retaining Walls

  • Carports

  • Garages

  • Shipping Container houses

  • Workers Accommodation

  • Warehouse additions

Types of drawings we can provide.

  • Existing Conditions

  • Feasibility

  • Sketch Design

  • Staged Drawings

  • Solar Analysis Drawings

  • Presentation Drawings

  • Town Planning / Development Approval

  • Tender Sets

  • Building Permit

  • Workings Drawings

  • Detail Drawings

  • Service Drawings, Electrical, Hydraulic Etc

  • As Built

  • Reflected Ceiling Plans

  • Fit-Out Drawings

  • Cabinetry / Joinery Drawings

  • De-Fit Drawings

  • Standard Drawings

  • Manuals

  • Generic Drawings

  • Evacuation Drawings

  • OHS / Site Induction Drawings

  • Set-Out Drawings

  • Tile Layout Drawings

  • Coloured Elevations

  • Perspective Views

  • 3d Coloured Perspectives / Models

Gilogo.jpg

Contact Details

Address: Richmond, Victoria, Australia

Email: kymsmith@iinet.net.au

Ph: 03 9428 8678

M: 0409 708 678